Emprendimiento
Departamento
A Estrenar

Detalles de la Propiedad

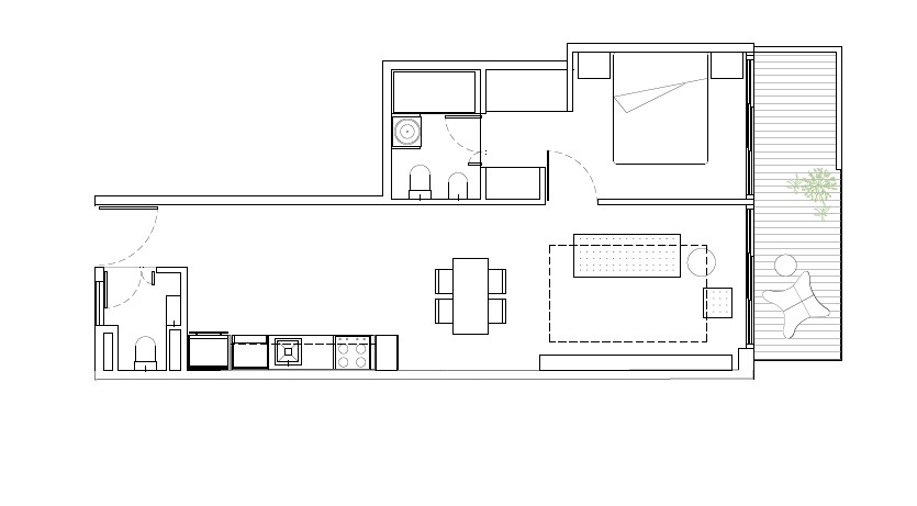
Superficie Cubierta 48,00 m²
Superficie Total 52,00 m²
Dormitorios 1
Baños 1
Toilettes 1
Superficie Semicubierta 4,00 m²
Ambientes Totales 2
Orientación Noreste
Luminosidad Alta

Descripción

   Descubrí la Combinación Perfecta
   
 ENTREGA: JUNIO 2028

    Con solo 16 unidades, te ofrecemos un espacio pensado para tu bienestar y estilo de vida.

  📍 Ubicación Premium y Conectividad Total.

   Situado en una zona privilegiada de Caballito, a metros del vibrante centro comercial y con acceso a todo  lo que necesitás.


  • Naturaleza Urbana: A solo 300m de Parque Rivadavia y 600m de Parque Centenario para tus momentos de relax.

  • Conectividad total: A 200m de la estación Río de Janeiro (Línea A de Subte) y diversas líneas de colectivos.


  ✨ Diseño, Calidad y Comodidad.

-Aislamiento: Doble Vidrio Hermético (DVH).

-Seguridad: Puerta blindada y portero visor.

-Equipamiento: Anafe a gas, horno eléctrico y pisos de porcelanato.

-Extras: Balcón, cocheras y terrazas con parrilla de uso exclusivo disponibles.

-Climatización: Calefacción individual por radiadores con caldera dual.


     VALORES

       Unidades de 2 ambientes desde USD 106.000 hasta USD 131.000.

    • Tipología A: 42m² cubiertos / 5m² semicubiertos / 3m² descubiertos. (Total: 50m²,   desde 114.000usd)   

    • Tipología B: 48m² cubiertos / 4m² semicubiertos. (Total: 52m²,  desde 124.000usd) 

    • Tipología C: 38m² cubiertos / 4m² semicubiertos / 2m² descubiertos. (Total: 44m²  desde 106.000usd)

    • Tipología D: 45m² cubiertos / 7m² semicubiertos. (Total: 52m² desde 120.000usd)


      ¿Querés saber más?

      ¡Llamanos o escribinos!


      Nuestro equipo de Coronel Fernandez  está listo para asesorarte.

      📸 @coronelfernandezok /📞1162818968


      CORONEL FERNANDEZ REAL ESTATE


      Ubicación

      Caballito
      Buenos Aires

      Características y Ammenities

      Ammenities

      ❄️ Aire Acondicionado
      🛗 Ascensor
      🏠 Balcón
      🔥 Calefacción
      Dormitorio En Suite

      Contactar por esta propiedad

      Consultar por WhatsApp
      Agendar Visita